The elongated building site in the outer Seefeld district spans its narrow end from the lakeside promenade to the Weinegg neighborhood, bordered by railway tracks and the thoroughfares of Bellerivestrasse and Seestrasse. The two longitudinal boundaries of the plot are defined by the listed Tiefenbrunnen station, built in 1892, and a car wash facility. A new, proposed structure acts as a landmark, establishing a focal point where Zurich meets Zollikon.
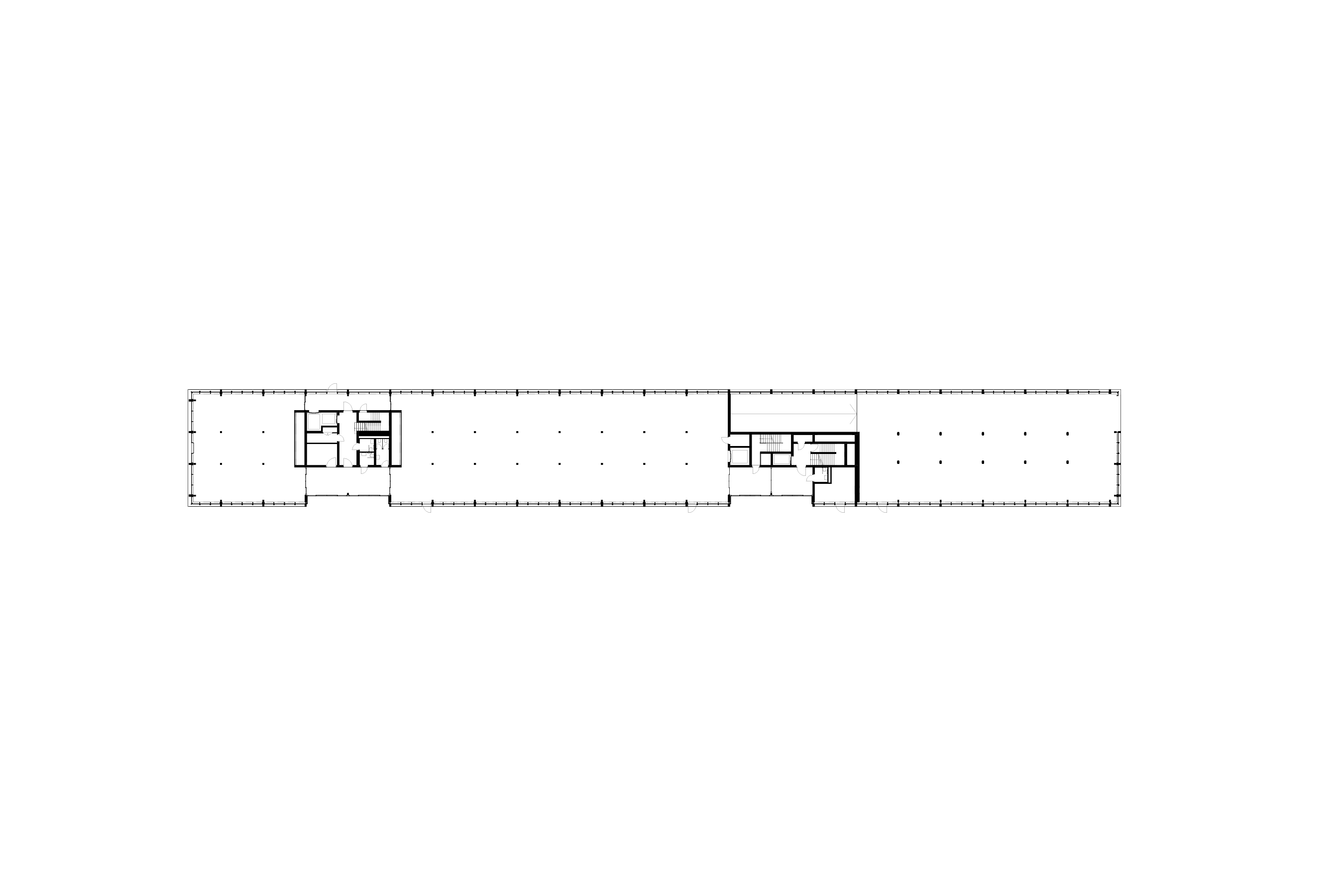
The architectural language of this commercial development, with a length of 135 meters, references buildings by Jakob Zweifel and Franz Füeg along Bellerivestrasse, following the tradition of these post-war commercial headquarters. The finely structured urban volume of the proposed building adopts a vertical segmentation: an elevated, high basement level, a central section, and a high attic level, distinctly designed as a crowning structure. The attic's size is compressed, which develops a head-end configuration and is followed by a longitudinal development made possible by an incision beneath the permissible standard floor height. The head-end harmonizes with the existing station building to shape a new urban station square.
The commercial building integrates public underground Park & Ride facilities, as well as segments of the car wash. Commercial and retail spaces can be found on the ground level, while the attic accommodates a restaurant with expansive views over the lake.
Two off-centered cores structure the open floors borne by concrete lumbar supports. A glass building envelope with a 1.5-meter grid provides both views through and into the volume, surrounded by irregularly and playfully positioned vertical façade pilasters made of anodized aluminum.
moreless
Das lang gezogene Baufeld im äusseren Seefeld spannt sich an seiner Schmalseite zwischen der Seepromenade und dem Quartier Weinegg auf und wird von den Gleisen der S-Bahn sowie vom Strassenraum der Bellerivestrasse und Seestrasse gefasst. Die beiden Längsenden der Parzelle werden durch den denkmalgeschützten, 1892 erbauten Bahnhof Tiefenbrunnen und eine Waschanlage abgesteckt. Als eine Landmarke bildet der vorgeschlagene Baukörper einen Fixpunkt an der Stadtgrenze von Zürich zu Zollikon.
Die Architektursprache dieses 135 Meter langen Geschäftsgebäudes referenziert die Bauten von Jakob Zweifel und Franz Füeg entlang der Bellerivestrasse. In der Tradition dieser Geschäftssitze aus der Nachkriegsmoderne etabliert der Neubau eine Adresse: Der vorgeschlagene, urban fein strukturierte Baukörper folgt in der vertikalen Gliederung dem klassischen Aufbau eines überhohen Sockelgeschosses, einem Mittelteil sowie einem als Krone ausgebildeten überhohen Attikageschoss. Dank der Komprimierung der Attika, auf welche in der Längsentwicklung ein Einschnitt unter der zulässigen Gebäudehöhe des Regelgeschosses folgt, wird ein Kopfbau ausgebildet. Dieser spannt mit dem bestehenden Bahnhofsgebäude einen neuen städtischen Bahnhofsplatz auf.
Das neue Geschäftshaus integriert im unterirdischen Parkhaus öffentliche Park&Ride-Bereiche sowie Teile der Waschanlage. Im Erdgeschoss finden sich Verkaufsflächen. Im Attikageschoss ist ein Restaurant mit einem weiten Blick über den See geplant.
Zwei azentrisch gesetzte Kerne gliedern die offenen Geschosse, die strukturell von Stützen aus Beton getragen werden. Eine gläserne Gebäudehülle mit einem Raster von 1,5 Metern erlaubt Durch- und Einblicke und wird mit vertikalen Fassadenpilastern aus eloxiertem Aluminium unregelmässig und spielerisch umspannt.
moreless
facts
commission: Direct
program: Office
size: 12120 m²
team: Annette Spillmann, Harald Echsle, Justyna Mydlak, Alejandro Knecht, Enzo Nercolini, Guillaume Chapallaz, Piotr Margiel, Luke Moreland, Peter Weeber, Katrin Zumbrunnen
consultants: Schnetzer Puksas Ingenieure AG; bbz Berlin