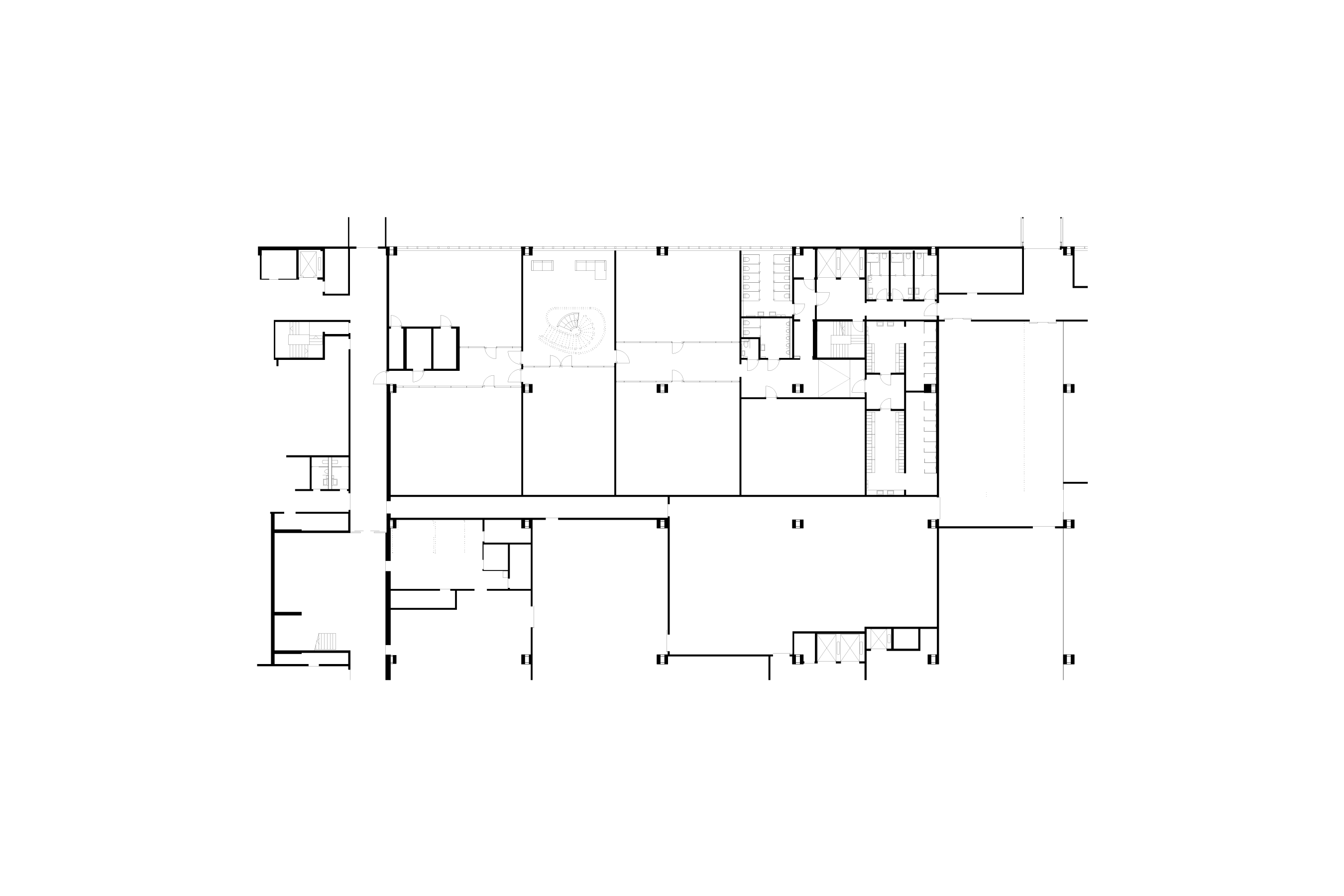
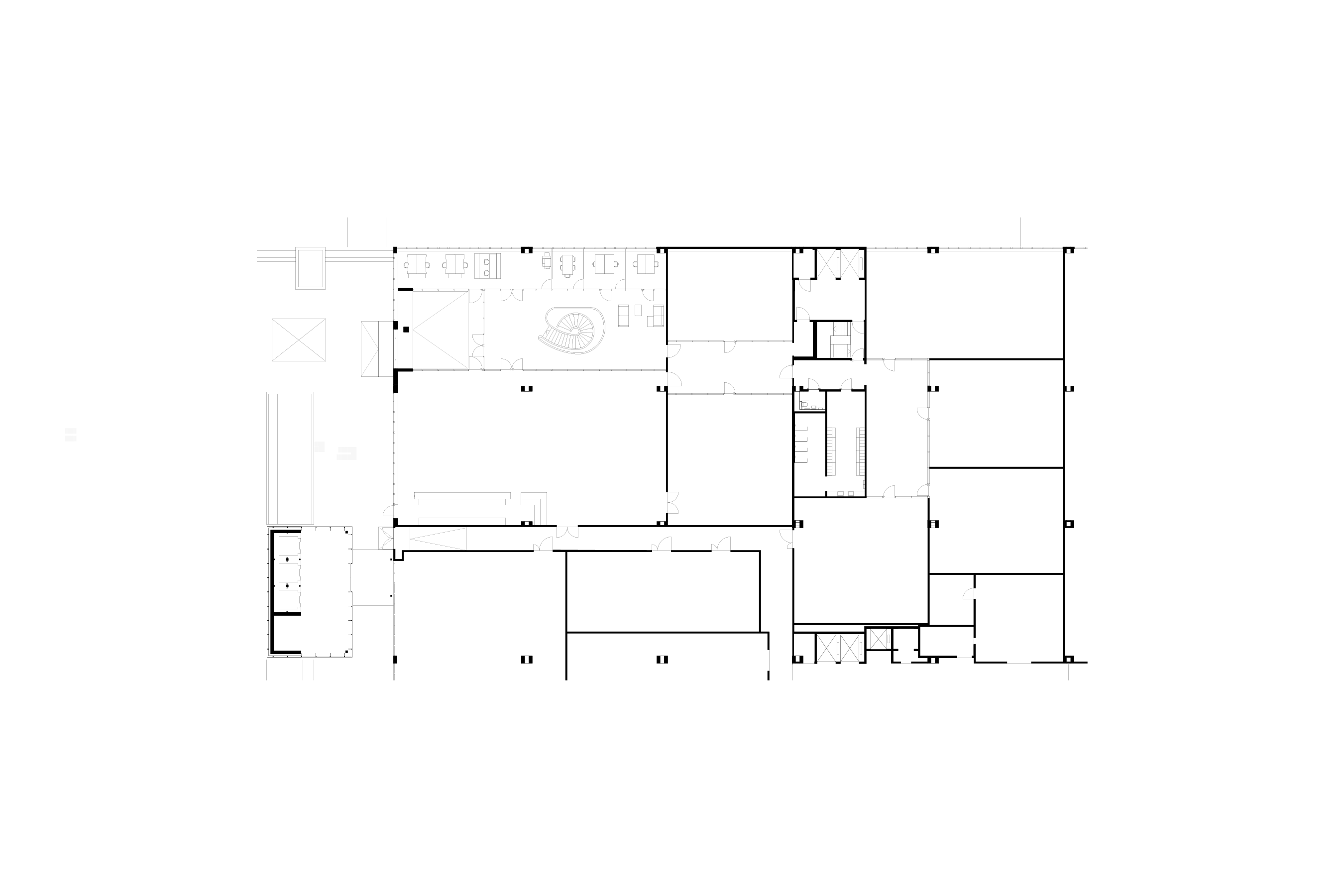
The Tanzwerk is built within the Migros logistics facility in Zurich West. Before this structure was converted, the premises were originally used for ripening bananas and food storage. Today, it houses the kinesthetic program of Switzerland’s largest dance school, dividing the space into 12 dance studios, a large performance auditorium and workrooms with various service areas.
The large-format glass partition walls allow for generous light distribution throughout the entire building. The exposed concrete of the spiral staircase connects the vast entrance area with the floors below. The careful selection of limited materials produces a spatial atmosphere with an industrial feel. The use of concrete, glass and yellow chrome steel with acoustic sprayed plaster ceilings and textile ventilation ducts subtly complement each other.
The dance school was expanded in 2019 with an enlarged cloakroom and four additional dance studios, all in accordance with the building’s new design aesthetic.
moreless
Das Tanzwerk ist in die Struktur des Logistikstandorts Migros Herdern in Zürich-West eingebaut. Vor dieser Umnutzung wurden die Räumlichkeiten für die Bananenreifung und Lebensmittellagerung genutzt. Heute gliedert sich das Raumprogramm der grössten Tanzschule der Schweiz in zwölf Tanzstudios, ein grosses Tanzauditorium sowie Arbeitszimmern mit diversen dienenden Räumen.
Die grossformatigen Raumtrennwände aus Glas ermöglichen eine grosszügige Lichtverteilung bis tief in den Gebäudekern. Die spiralförmige Sichtbetontreppe verbindet den weiten Eingangsbereich mit den darunterliegenden Geschossen. Durch die sorgfältige, reduzierte Materialwahl konnte eine industriell anmutende Raumatmosphäre erzeugt werden: Beton, Glas und gelb chromatierter Stahl sowie akustisch wirksame Spritzputzdecken und textile Schläuche zur Raumlüftung spielen subtil zusammen.
2019 konnte die Tanzschule in derselben ästhetischen Sprache um vier weitere Tanzstudios erweitert und die Garderoben konnten vergrössert werden.
moreless
facts
commission: Direct
program: Conversion, Culture
size: 2600 m²
team: Annette Spillmann, Harald Echsle, Guillaume Chapallaz, Annina Fischer, Tiago Matthes, Dagmar von Strantz
consultants: Henau Gugler AG