In the central zone of the Stäfa municipality in Zurich, a renovation project located next to a train station is set in an area that once housed a factory and a residential building. This ensemble, developed over several phases, was finally completed in the 1970s as a typical, tectonically shaped business building unified by a one-story pedestal structure that consolidated all the individual components.
In a renovation project led by spillmann echsle, the business building facing Bahnhofstrasse and the one-story pedestal to the west were preserved and updated. This new addition incorporates the surrounding building blocks and expands upon the original structure.
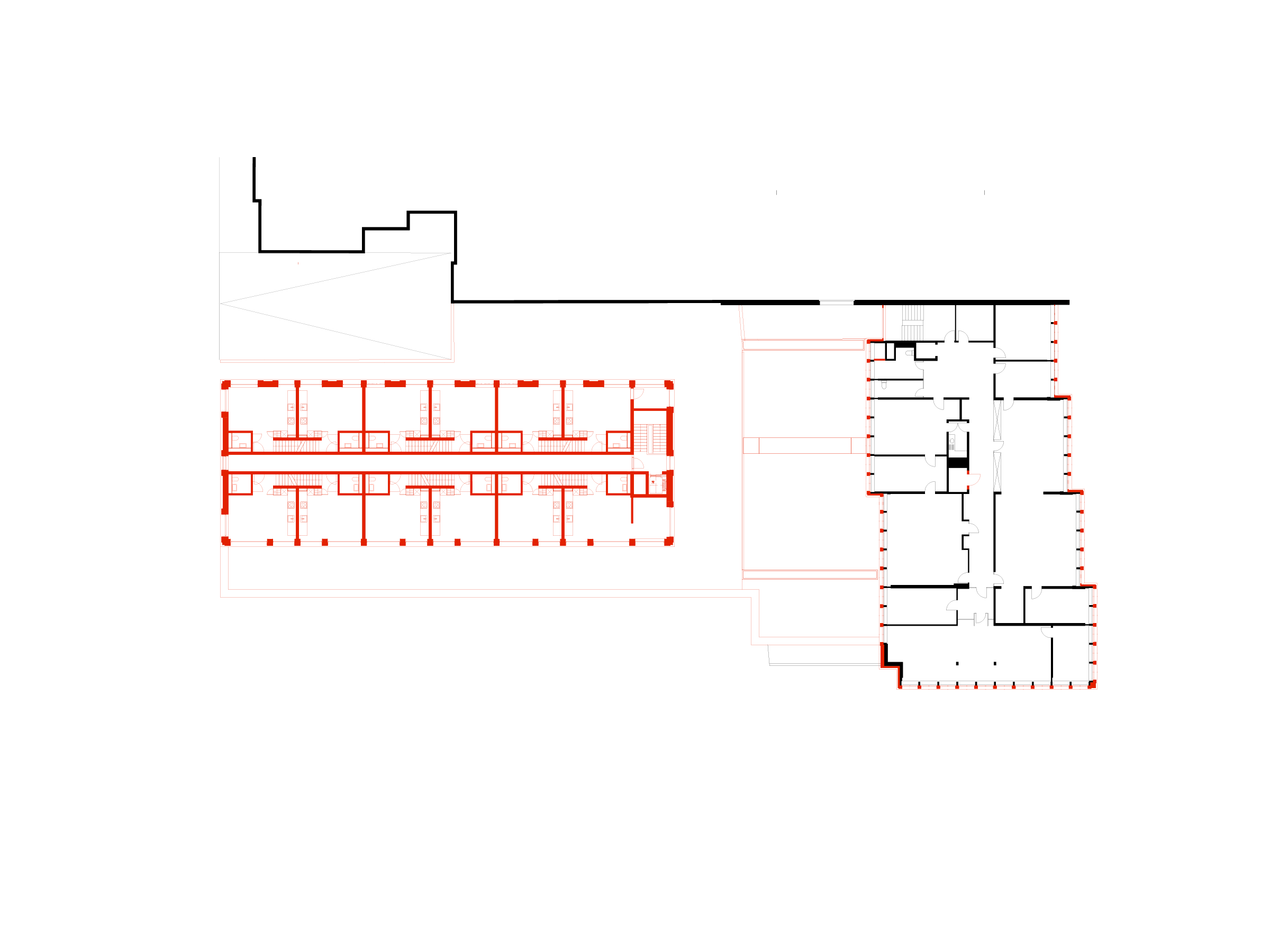
A nursery within a landscaped garden was established on the ground floor. Directly above, twelve duplex apartments with southern exposure on the first floor incorporate sizeable outdoor spaces, such as roof terraces and balconies. A sprawling garden envelops the entire site, and an underground parking lot for 30 cars is accessible via an existing ramp.
A tectonic façade design visually unifies the structures while allowing each building to retain a subtle individuality. The Bahnhofstrasse-facing commercial building preserved its original façade grid and presented a more restrained aesthetic while complementing the playful design of the new addition. Fenestration is tactically adapted to enhance the interior spatial dynamics and features wall-to-ceiling living room windows interspersed with smaller parapet-framed openings. Both structures exhibit a façade with a rear-ventilated, pre-installed system made of tactile metal panels.
moreless
Das rund 3680 m2 grosse Grundstück befindet sich in der Zentrumszone in unmittelbarer Nähe zum Bahnhof Stäfa. Die Liegenschaft liegt südseitig an der Rückseite der auf den Bahnhofplatz ausgerichteten Baukörper. Auf dem Areal befand sich ursprünglich eine Fabrikationsstätte mit Wohnhaus, die über mehrere zeitliche Etappen entstanden ist und mit dem Bau eines zeittypischen, fein tektonisch ausgebildeten Geschäftshauses in den 1970er-Jahren ihren baulichen Abschluss fand. Ein eingeschossiger Sockelbau verbindet bereits heute die einzelnen Baukörper. Eingemietet sind unterschiedliche zentrumsspezifische Nutzungen wie Fitness, eine Schule, eine Kindertherapie, das Notariat und diverse Büronutzungen. 
Das auf die Bahnhofstrasse ausgerichtete Geschäftshaus sowie der nach Westen anschliessende eingeschossige Sockelbau bleiben erhalten und wurden saniert. Ein neuer Baukörper, der sich in der Körnung an den grossmassstäblicheren Bausteinen der Bahnhofstrasse 24 und 26 orientiert, komplettiert neu das bauliche Ensemble. Durch die Setzung des neuen Baukörpers werden die Zugänge zu den verschiedenen Nutzungen entflochten.
Im Erdgeschoss ist eine Krippe und ein Kindergarten geplant, umgeben von einem Garten. In den drei Obergeschossen entstanden 12 Duplexwohnungen, die sich allesamt nach Süden ausrichten und grosse Terrassen bzw. Dachterrassen erhalten. Ein grosszügig angelegter Aussenraum umfasst das gesamte Areal und integriert die Aussenparkplätze. Die unterirdische Parkierung mit insgesamt 30 Parkplätzen ist über die bestehende Rampe von der Spittelstrasse aus angebunden. 
Durch eine sorgfältig strukturierte, tektonische Fassadenausbildung werden die einzelnen Baukörper optisch zusammengebunden. Gleichzeitig unterscheiden sie sich subtil in ihrem Ausdruck. Der verspieltere Neubau weist eine klare Verwandtschaft mit dem auf die Bahnhofstrasse gerichteten Geschäftshaus auf, dessen Fassadenrasterung bestehen bleibt und im Ausdruck strenger und zurückhaltender wirkt. Die Befensterung reagiert in der Abmessung auf die jeweils vorhandene räumliche Situation im Innern. Raumhohe Wohnzimmerfenster alternieren mit kleineren Befensterungen mit Brüstungen. Fassadenbänder zeichnen die Versprünge spielerisch nach. Die Fassade beider Gebäudekörper ist eine hinterlüftete, vorgehängte Konstruktion aus haptischen, metallenen und tektonisch angeordneten Platten.
moreless
facts
commission: Direct
program: Conversion, Education, Mixed Use, Office, Residential
size: 3680 m²
team: Annette Spillmann, Harald Echsle, Rico Furter, Isabel Ausserer, Jen Balmer, Benjamin Erdman, Christian Höher, Nikolis Nikolaos, Saskja Odermatt, Christian Schönthaler, Dagmar von Strantz