Rüschlikon Detached House, Conversion and Extension
location: Rüschlikon, Switzerland
client: Private
status: Realized
project: 2006–2008
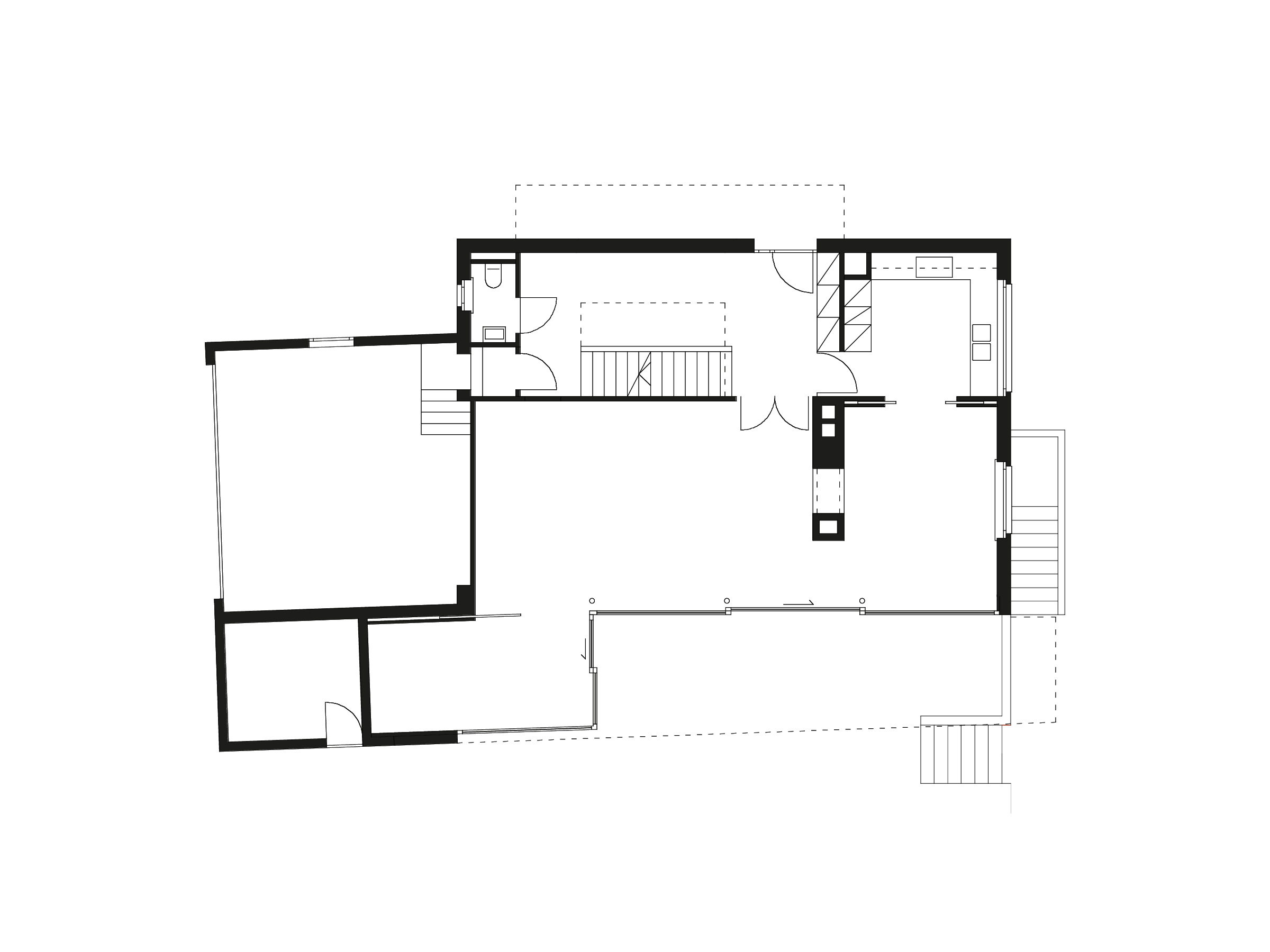
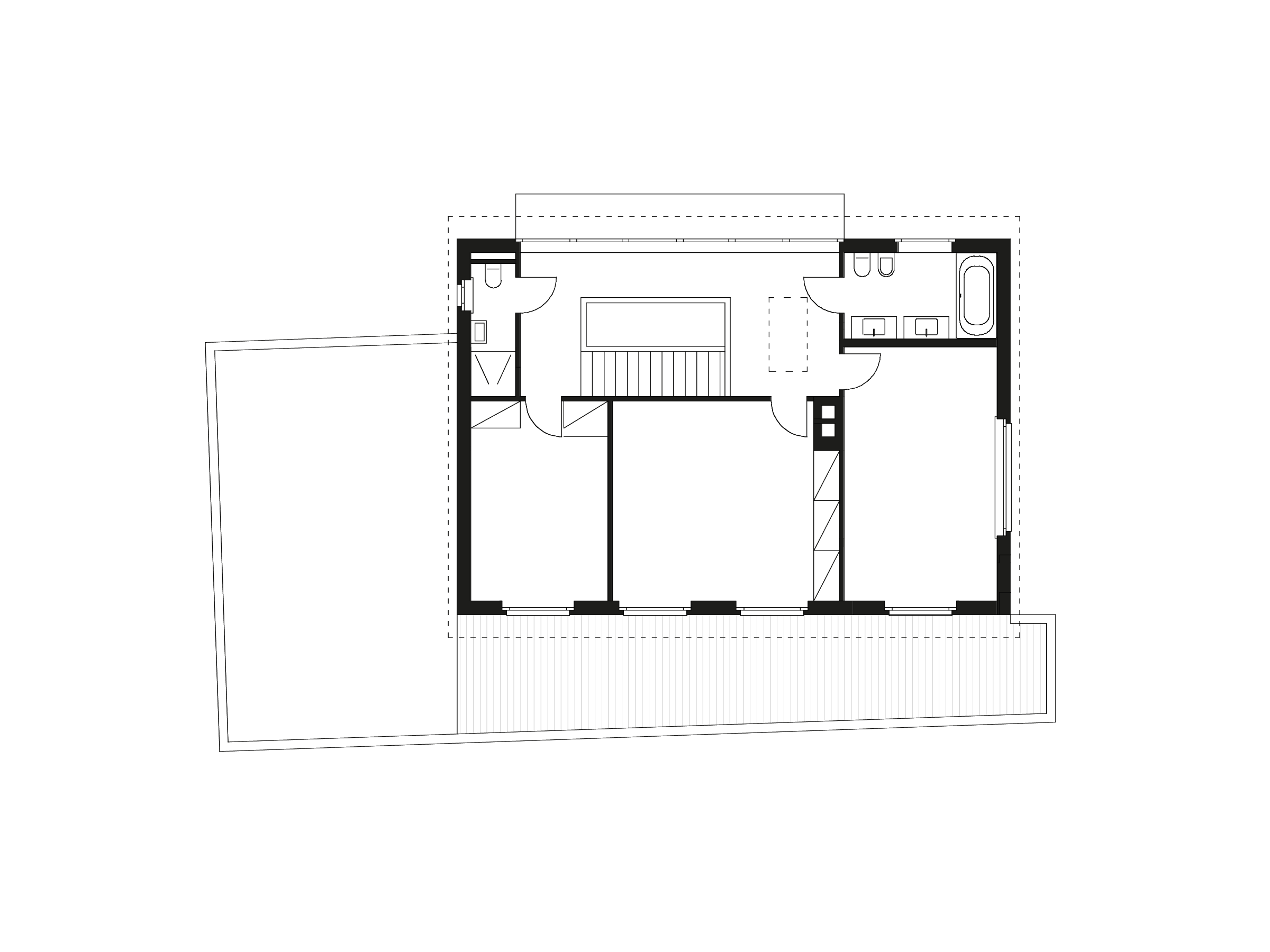
The renovation of a home from the 1950s offers a lesson in spatial economy. A once expansive hall is compressed by the repositioning a single wall, which unlocks additional square meters above. On the first floor, this newfound space is further amplified by the introduction of a balcony. In the living room below, residents benefit from a more secluded outdoor area. The renovation uses materials that are evocative of a Mediterranean aesthetic, where white plaster walls and beige, polished plaster floors come together in a sensitive refurbishment.
facts
commission: Direct
program: Residential
size: 300 m²
team: Annette Spillmann, Harald Echsle, Martina Roth









